PART 01
浙江三可熱交換系統有限公司,是一家專業從事換熱器、微通道換熱器和翅片管換熱器的研發、生產和銷售的公司。在紹興擁有一個7.2萬平方米的生產基地,在泰國擁有一個2.5萬平方米的生產基地。公司擁有強大的設計和開發能力,專門設計空調系統和熱管換熱系統的許多領域。涉及公交、電信、工商業制冷、冷凍庫、軌道交通、木材烘干、高壓變電站、航空航天等多個行業,深得客戶信賴。
?

博革工廠布局團隊于2024年10月進駐公司,經過調研分析、功能規劃、詳細布局、輔助設施等步驟,至2025年1月完成整體布局規劃,規劃方案貫穿精益思想,實現流動化生產布局。
PART 02
產品產量分析:



現狀物流分析:
?

功能布局規劃:
?

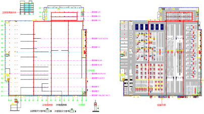
詳細區域布局:
?

周轉器具規劃:

輔助設施規劃:

水電氣規劃:

規劃總結:

推薦新聞
博革為云南太標集團精益質量管理咨詢,鑄就多業態智能品質標桿 云南太標集團的成功在于 “三階遞進、因材施教”:第一階段聚焦核心破痛點,第二階段全業態建體系,第三階段智能化固長效;關鍵在于貼合不同業務特性差異化落地,用數據驅動決策,用機制激發全 /news/5237.html
博革咨詢為浙江鋼管提供6S目視化管理項目落地案例 徹底破解現場管理難題,打造標準化、規范化、精益化的生產現場,浙江鋼管全面啟動6S 目視化管理提升項目和博革集團服務,精耕現場精益管理,鑄就鋼管行業標桿。 /news/5246.html
工程機械集團公司精益管理戰略案例 在項目落地過程中,博革咨詢按照系統診斷、試點推行、樹立標桿、快速復制,IT固化、系統評價、能力內化等七個步驟對集團公司下屬的17個子公司進行推進。 /news/4878.html

.png)
.png)
.png)